VIVIENDA UNIFAMILIAR - ORTIZ GONZALES
🗓 2021 -2022 | Santa Cruz de la Sierra  - Bolivia
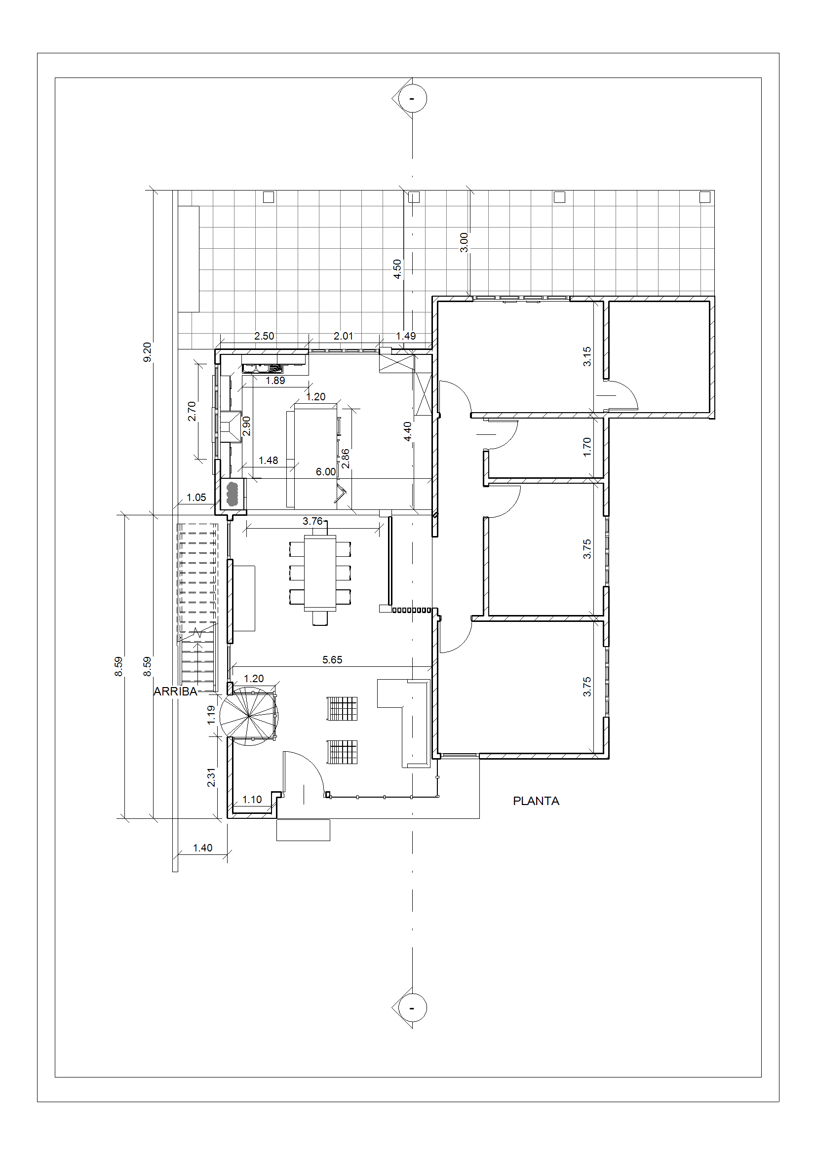
🏗 Restructuración Parcial de Vivienda Unifamiliar 1 niveles y terraza :
Superficie Útil construida = 65 m² 
Hormigón Fck = 280 kg/cm² | Acero = 5000 kg/cm²
Norma: NB1225001: 2020
Losa nervada unidireccional postensada.

🧱 Planificación y Construcción: Suarez Construction Studio 
👷‍♂️ Director de Obra: Javier Suárez Ortiz | Félix Muñoz Llanos

💬 “Este proyecto consistió en la demolición parcial de la vivienda original y la reconstrucción de un nuevo sector de living y cocina. El cliente solicitó un espacio amplio, sin columnas visibles, y una terraza capaz de alojar un jacuzzi.
Frente a estas condiciones, se propuso una estructura de hormigón armado con losa postensada, permitiendo grandes luces libres y soportando cargas concentradas.
Las terminaciones incluyen porcelanato tipo gray concrete, puertas de madera emplacada en roble y marcos de tajibo.”

You may also like

Back to Top