COCINA - DURÁN ARZE
🗓 2024 | Santa Cruz de la Sierra  - Bolivia

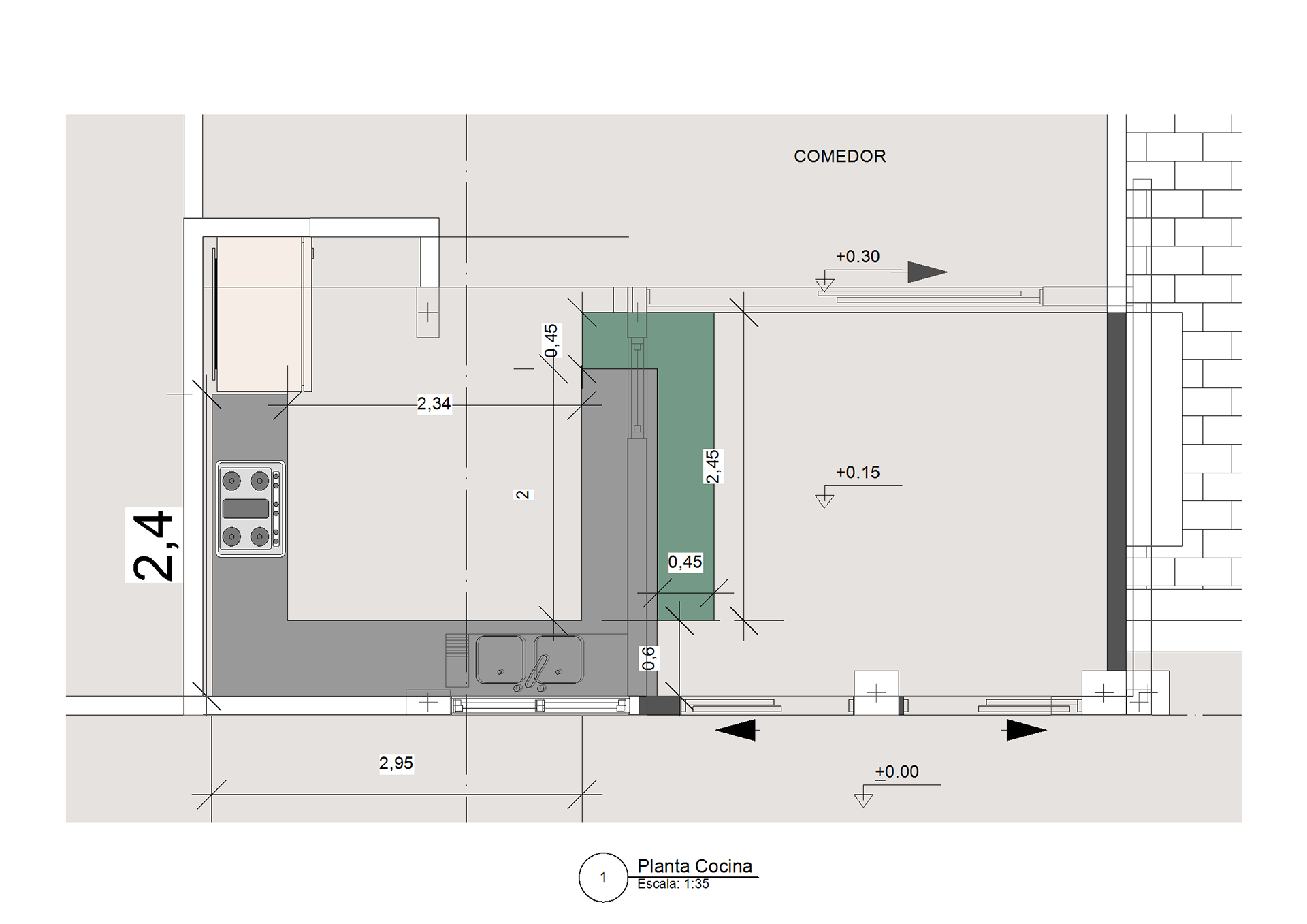
🏗 Remodelación de Cocina :
Hormigón Fck = 210 kg/cm² | Acero = 5000 kg/cm²
Mesones : Cuarzo   |  Grifería : FV
Muebles de Melamina

Revestimientos: Porcelanato Carrara
🧱 Diseño y Construcción: Suarez Construction Studio 
👷‍♂️ Director de Obra: Javier Suárez Ortiz

🗨️ "Este proyecto fue una verdadera intervención quirúrgica en el corazón de la vivienda.
Consistió en la ampliación y remodelación integral de la cocina, incluyendo tanto el espacio físico como el diseño y fabricación de la nueva mueblería.
A través de una cuidadosa selección y combinación de materiales, logramos integrar armónicamente un área exterior al interior de la cocina, creando un ambiente más amplio, funcional y conectado con el entorno.
El resultado fue altamente satisfactorio para los propietarios, quienes valoraron especialmente la transformación estética y la mejora en la funcionalidad del espacio.”

You may also like

Back to Top